New Build 3 Bed Penthouse Just 600m From The Beach In Mil Palmeras

  • €455,000
For Sale New Build
New Build 3 Bed Penthouse Just 600m From The Beach In Mil Palmeras
  • €455,000

Overview

Property ID: N8579
  • N8579
  • Property ID
  • Apartment
  • Property Type
  • 3
  • Bedrooms
  • 2
  • Bathrooms
  • 106
  • Sq M

Description

New Build Apartments and Bungalows in Mil Palmeras Modern Residential Complex in a Prime Location Discover a stunning new residential complex in the charming coastal area of Mil Palmeras, offering a selection of high-quality apartments and bungalows designed to meet modern living standards. Nestled just 600 meters from the sandy beaches of Mil Palmeras, this development combines comfort, style, and convenience. Spacious and Stylish Apartments and Bungalows Choose from 2- or 3-bedroom apartments, each featuring 2 bathrooms and spacious terraces. Alternatively, opt for bungalows with 2 bedrooms and 2 bathrooms, available in ground-floor units with private gardens or top-floor units with exclusive solariums. High-Quality Finishes for Modern Living This development offers exceptional features and finishes: PVC exterior carpentry with thermal break and double-glazed “Climalit” low-emissivity windows. Reinforced entrance doors for added security. Bathrooms equipped with vanities, mirrors, and modern fixtures. Built-in wardrobes with interior LED lighting, drawers, and hanging rails. Hot water supplied through aerothermal technology for energy efficiency. Pre-installation for ducted air conditioning and heating in living areas and bedrooms. Exclusive Community Amenities The complex is fully gated and boasts: Beautifully landscaped communal gardens. Sparkling swimming pools for residents. Optional underground parking spaces and storage rooms for added convenience. Prime Location in Mil Palmeras Located between Campoamor and Torre de la Horadada, this development offers easy access to local amenities, schools, restaurants, and sports facilities open year-round. Mil Palmeras is known for its charming town square and its vibrant “restaurant alley,” featuring diverse international cuisines. For nature enthusiasts, the Lo Monte Nature Park, a protected bird reserve, and the Río Seco Natural Park offer perfect spots for hiking and relaxation. Proximity to Key Points of Interest Murcia International Airport: 40 km (approx. 45 minutes). Alicante Airport: 75 km (approx. 45 minutes). Closest golf courses: Less than 10 km away. Shopping centers: 8 km to Zenia Boulevard. Marinas and ports: 5 km to Torre de la Horadada. Your Dream Home Awaits Don’t miss the opportunity to own a property in this exceptional residential complex. Whether you’re looking for a vacation home or a permanent residence, this development in Mil Palmeras has it all. Contact us today for more information or to schedule a visit! 1049

Details

Updated on February 15, 2026 at 4:24 pm
  • Property ID: N8579
  • Price: €455,000
  • Property Size: 106 Sq M
  • Bedrooms: 3
  • Bathrooms: 2
  • Property Type: Apartment
  • Property Status: For Sale
  • City Alicante

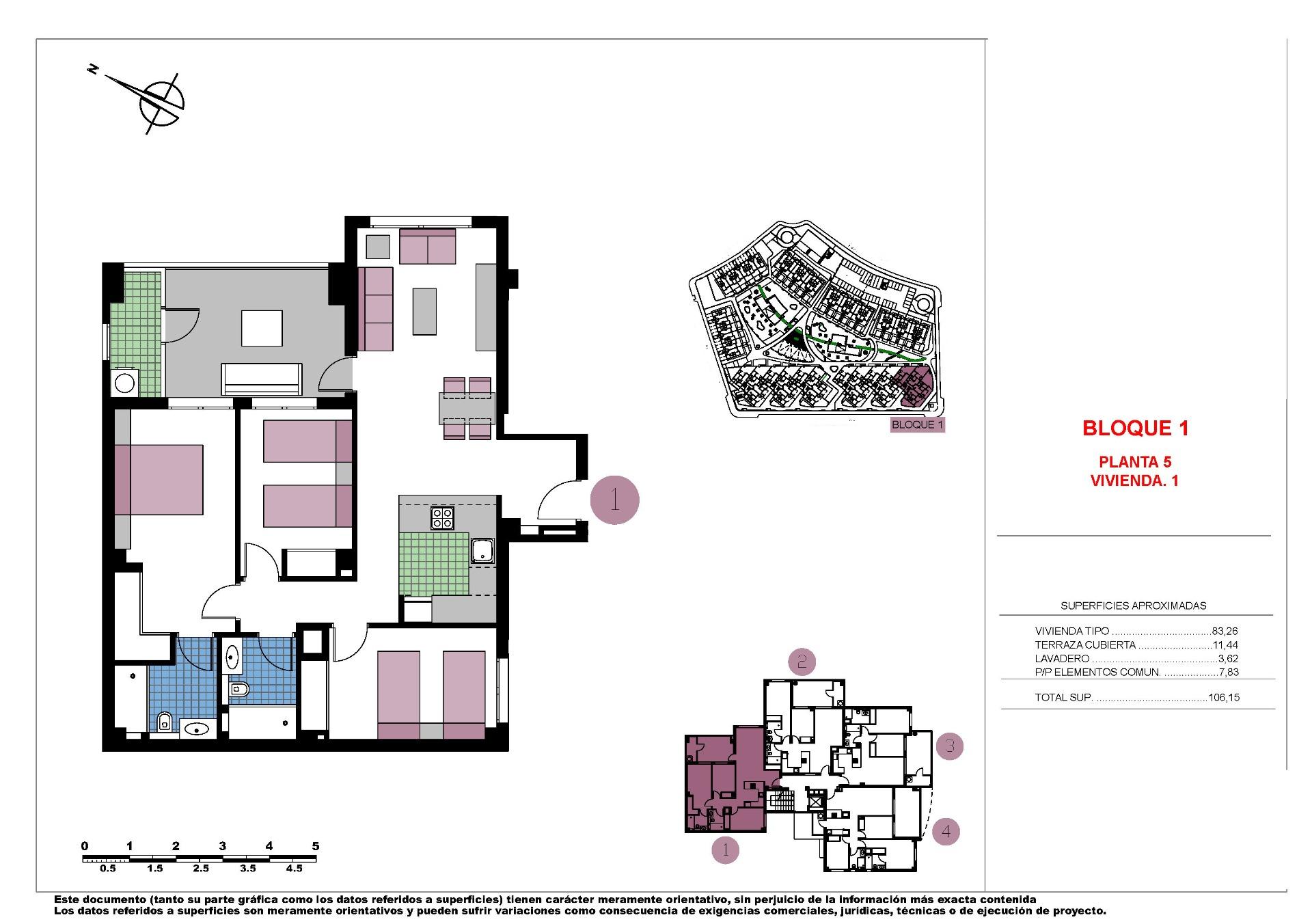
Floor Plans

image

Description:

image

Description:

Compare listings

Compare
CMC Properties
  • CMC Properties